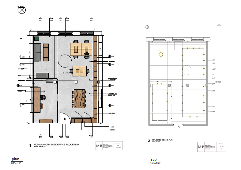
McMahon-Baek Office Design
McMahon-Baek Architecture aspires to, above all, do quality work, which we took into consideration when designing their office. The firm requested to have an open storage system, an area for employees' children to spend time in, a flexible space for employees with room for growth, a lunch / meeting area and an enclosed space for millwork
